10月27日,深圳市龙华区城市更新和土地整备局发布关于《龙华区观澜街道蚌岭片区城市更新单元规划修改》的公告。
龙华区观澜街道蚌岭片区城市更新单元已列入《2016年深圳市城市更新单元计划第六批计划》,项目于2019年10月取得《深圳市龙华区人民政府关于〈龙华区观澜街道蚌岭片区城市更新单元规划〉审批情况的通知》(深龙华府函〔2019〕576号)。现龙华区观澜街道蚌岭片区城市更新单元规划修改已经龙华区城市更新项目审查会议审批并获原则通过,现予以公告。
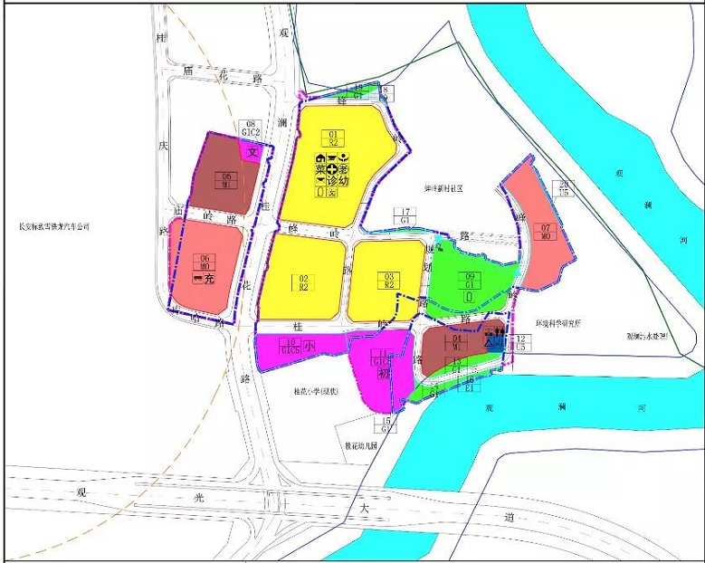
一、项目概况
观澜街道蚌岭片区城市更新单元位于观澜北的蚌岭新村片区,处于城市干道观光大道与桂花路交汇处的东北侧。

该更新单元用地面积13.4公顷,拆除范围用地面积12.1公顷,开发建设用地面积6.8公顷,规划容积为43.3万㎡,容积率6.3。

其中,厂房63420㎡,产业研发用房76260㎡(含创新型产业用房9160㎡),产业配套用房34050㎡(含商业服务设施8950㎡,宿舍25100㎡);住宅234460㎡(含保障性住房24490㎡),商业7000㎡;公共配套设施18450㎡(其中12班幼儿园3200㎡(占地面积3600㎡)、社区管理用房300㎡、社区警务室50㎡、社区服务中心400㎡、文化活动室1000㎡、社区健康服务中心1000㎡、社区老年人日间照料中心750㎡、门诊部3000㎡、社区菜市场500㎡、邮政所100㎡、公交首末站5300㎡、地下公共充电站1100㎡以及社区级公共配套用房1750㎡),另配建社区体育活动场地3000㎡。物业服务用房按照《深圳经济特区物业管理条例》予以核定。

二、规划修改事项
规划区位于龙华区观澜街道桂花路两侧,现由实施主体深圳市荣耀房地产开发有限公司申请规划修改。具体修改事项如下:
将原城市更新单元规划批复中“建设用地空间控制图(地下空间控制图)”的“公共车行通道—地下”修改为“车行通道—地下”。
项目一期、二期已于2021年5月、9月发布实施主体公示,实施主体均为深圳市荣耀房地产开发有限公司,由深圳市物业发展(集团)股份有限公司持股69%,深圳市心海荣耀房地产开发有限公司持股30%,四川信托持股1%。
深物业的股权是在通过收购而来。据深物业关于收购标的公司股权并为其提供担保的公告,2018年,四川信托向深圳荣耀发放21.93亿元借款,心海荣耀将深圳荣耀70%股权转让给四川信托,剩余30%亦质押给四川信托,另外心海控股方向四川信托提供所属其他企业股权质押、担保及部分实物房产抵押,建行深圳分行为四川信托资金来源方。
彼时,深圳荣耀实际控制人心海控股书面承诺,此股权变更实为建设银行深圳分行借助四川信托通道所做的融资安排,深圳荣耀偿还四川信托借款的同时,心海荣耀必须平价回购深圳荣耀70%股权,四川信托只享有11%固定收益,该公司实际控制权仍为心海控股。
2019年2月18日,深物业发布公告称,为担保四川信托与深圳荣耀《贷款合同》项下四川信托债权的实现,深物业拟以未来取得的深圳荣耀69%股权作为质物向四川信托提供股权质押担保,涉资22.6亿元。
据深物业集团介绍,预计项目货值超过100亿元。深物业集团将协调心海控股共同指导深圳市荣耀房地产开发有限公司做好项目的拆迁及后续开发工作,将项目打造成观澜片区标杆生态融合型产城综合体。
深物业集团成立于1982年11月,总承包建设的深圳国际贸易中心大厦,被誉为神州第一楼并创造了三天一层楼的奇迹,成为“深圳速度的体现,改革开放的象征”,并荣获地域地标类“深圳文化名片”称号。房地产业务方面开发了深圳国际贸易中心大厦、国贸商业大厦、皇城广场等高层商务建筑群,田园都市花园(上海)、俊峰丽舍、新华城、皇御苑、深港1号、廊桥国际、彩天怡色、前海港湾花园、松湖朗苑(东莞)、半山御景(徐州)、湖畔御景(扬州)等一大批高中档住宅小区;总承包建设了我国最大的对外陆路口岸——皇岗口岸;合作开发了天安国际大厦、罗湖商业城等知名商务楼宇。